Настенная вешалка своими руками для бани
Продолжаем делать мебель для бани. Деревянная вешалка своими руками – это то, что вполне под силу каждому владельцу собственной бани. Ее легко изготовить, все материалы доступны в любом строительном магазине, а сама конструкция проста и достаточно прочна, чтобы прослужить долгие годы.
Назначение и описание конструкции вешалки для бани
Эту настенную вешалку можно установить в предбаннике, прихожей, в раздевалке или другом подходящем банном помещении. А можно, например, сделать две вешалки. Одну использовать для верхней одежды, а другую – в предбаннике для полотенец и нижнего белья.
По внешнему виду она напоминает обыкновенную прихожую, которая часто устанавливается в жилых помещениях. И в бане она тоже может выполнять такие же полезные функции. Подобрав нужный материал для этой вешалки, и отделав ее соответствующим образом, она станет неотъемлемой частью интерьера бани.
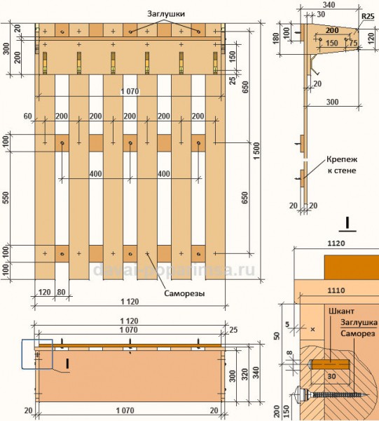
Основной несущей конструкцией настенной вешалки является обрешетка из шести вертикальных и трех горизонтальных досок с размерами 20x120x1500 и 20x100x1120 мм соответственно (толщина, ширина, длина). Крепление их между собой производится с тыльной стороны саморезами по дереву через горизонтальные доски. Чтобы саморезы не вышли из вертикальных досок, их длина должна быть меньше суммарной толщины закрепляемых деталей, то есть 35 мм.

В верхней части обрешетки находится держатель крючков 20x200x1070 мм, на верхнюю продольную грань которого помещена полка 20x300x1070 мм. Сам держатель закрепляется к обрешетке также с ее тыльной стороны.
По краям полки размещены боковины, которые исполняют роль кронштейнов для придания полке достаточной прочности, чтобы она выдерживала вес помещенных на ней вещей и предметов.
Собранная вешалка для бани закрепляется к стене через отверстия в горизонтальных досках. Такой способ крепления обеспечит не только надежность монтажа всей вешалки, но и предотвратит ее деформацию под воздействием влажных условий бани.
Все видимые головки саморезов закрываются деревянными мебельными заглушками. Для этого в закрепляемой детали высверливаются ступенчатые отверстия. По малому диаметру заводится и утапливается шуруп, а по большему – заглушка.
Примечание: в качестве альтернативы можно использовать мебельные шурупы с увеличенной глубиной отверстия в головке. При их использовании достаточно просверлить простое отверстие в закрепляемой детали. Такие шурупы закрываются пластмассовыми заглушками под цвет вешалки, придавая всему изделию вполне приглядный вид.
В содержание
Что потребуется для изготовления настенной вешалки
В качестве основных материалов подойдут строганые сосновые доски толщиной 20-25 мм, если, конечно, не предполагается использование вешалки в помещении с повышенной температурой воздуха. Но доски из лиственных пород древесины – лучший вариант, так как они не выделяют смолу.
Для достаточно широких деталей, например, полки шириной 300 мм, лучше использовать клееный мебельный щит. Это значительно упростит ее изготовление.
Вспомогательные материалы и инструменты
- Мебельные шканты 10×30 мм.
- Саморезы по дереву.
- Мебельные деревянные заглушки.
- Клей ПВА для дерева.
- Влагостойкий акриловый лак для дерева на водной основе.
- Морилка, если надо изменить цвет вешалки.
- Электродрель с набором сверл.
- Ручная циркулярная пила.
- Электрический лобзик.
- Шуруповерт.
- Ножовка по дереву.
- Молоток.
- Рулетка 3 м.
- Угольник.
- Линейка.
- Абразивная шкурка.
В содержание
Сборка деревянной вешалки своими руками
Перед сборкой все детали должны быть тщательно обработаны абразивной шкуркой: углы и острые кромки закруглены, удалены заусенцы, сколы и другие бросающиеся в глаза неровности.
Учитывая то, что данная конструкция вешалки разработана и уже давно изготовлена мной своими руками, предлагаю Вам следующий порядок сборки.
Сборка обрешетки
В содержание
Сборка полки
На данном этапе нам нужно будет состыковать полку с двумя боковинами, исполняющими роль кронштейнов.

В содержание
Сборка всей конструкции вешалки
Так как всю нагрузку от расположенных на полке предметов будут нести именно боковины, то их следует надежно закрепить к крайним вертикальным доскам обрешетки. Для этого в дополнение к саморезам так же применим деревянные мебельные шканты.

Ранее мы уже в торцах боковин просверлили для них отверстия. Поэтому промажем их клеем и вобьем в эти отверстия. Затем просверлим соответствующие отверстия в крайних вертикальных досках обрешетки и соединим их между собой.
Важно обеспечить правильность стыковки ранее собранной полки. С одной стороны, должно быть точное и без перекосов соединение, а с другой – полка должна лечь нижней гранью на продольную грань держателя крючков.
Крепление полки к обрешетке производится саморезами в следующем порядке:
- Вначале с тыльной стороны вертикальных досок вкручиваются по два самореза на каждую боковину.
- Затем полка сверху закрепляется к верхней грани держателя крючков одним-двумя саморезами.
В содержание
Рекомендации при изготовлении вешалки своими руками
Соединение деревянных деталей с помощью шкантов в домашних условиях – операция довольно сложная в части обеспечения надлежащей точности. Просверлить отверстия под шканты с помощью ручной дрели и выдержать межцентровые размеры, практически, невозможно. Особенно это касается отверстий, просверленных вдоль древесных волокон, так как сверло неизбежно уводит в строну от их центров. Поэтому, чтобы уменьшить погрешность так, чтобы она не влияла на качество сборки, следует придерживаться следующих правил:
- Рассверливать отверстия за несколько приемов: вначале малым диаметром сверла, например, 2-3 мм, а затем увеличивать его до требуемого значения (в нашем случае до 8 мм).
- Вначале устанавливать шканты в отверстия, просверленные вдоль волокон, а затем по полученным результатам просверливать отверстия в другой сопрягаемой детали.
- Хорошие результаты дает способ разметки центров сопрягаемых отверстий с помощью тонких гвоздиков, который подробно описан в статье об изготовлении деревянной лавки для бани в главе по технологии ее сборки. Для меня этот способ, как правило, единственно возможный прием, обеспечивающий необходимую точность сопряжения деревянных деталей.
- Если погрешность такова, что не удается собрать детали или качество сборки желает быть лучшим, то шканты подрезаются по длине с уменьшением их диаметра. Образовавшиеся пустоты в отверстии из-за уменьшения объема шканта, можно заполнить клеем ПВА, смешанным с древесными опилками.
- Для увеличения срока службы вешалки, все деревянные детали обрабатываются влагостойким лаком на водной основе.
В зависимости от площади помещения, в которой будет установлена настенная вешалка, ее можно подогнать под требуемые размеры. Высота, ширина, количество крючков – все это без проблем изменяется и не затрагивает как технологию ее изготовления, так и принципиальную схему.
И наконец, для придания законченного вида и удобства пользования, под вешалку можно поставить деревянную лавку, которую также можно сделать своими руками.

На этом внутренняя отделка бани не кончается. Еще предстоит сделать своими руками много банных аксессуаров – это подголовник, сиденье для парной, декоративную решетку для светильников в парилке, обливное устройство, шайку для воды и многое другое.
В содержание
Отделка бани своими руками